House for a Collector, Port St. Mary, Isle Of Man 2022-2023

A collection of solids resting on the sloping headland, regularised and composed in a low pitched stepping form, quiet and restrained, robust and protective, refinement evident in the detail.

Externally monochromatic brick references the colour of the shoreline stones, flush pointed, deep reveals protect from the weather and frame the views. Levels are modulated by a stepping plinth, embedded and anchored. The zinc roof sharp and rational, its form like a birds wing ready to fly.

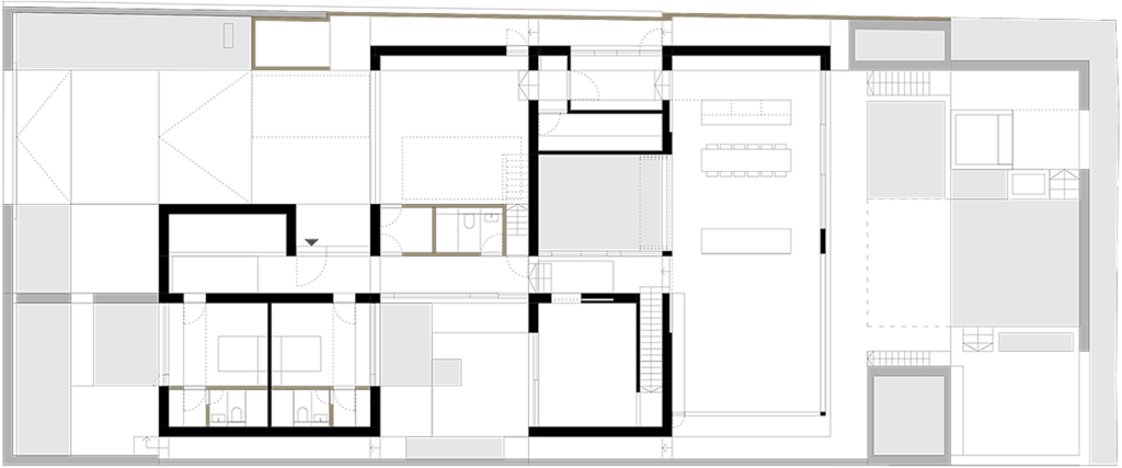
Inside, calmness, warmth. The plinth evident in the polished concrete floor planes. Spaces reflective of the external form, volumetric, natural light invading from multiple apertures creating seamless and ethereal space. A collection of intertwined interior volumes unified in pale plaster. In contrast, precise dark articulated timber (walnut) insertions contain ‘servant’ spaces and sit within the overall composition. Everywhere, framed views and extending ground plane capture the courtyards, garden and landscape beyond, the sea, the sky.